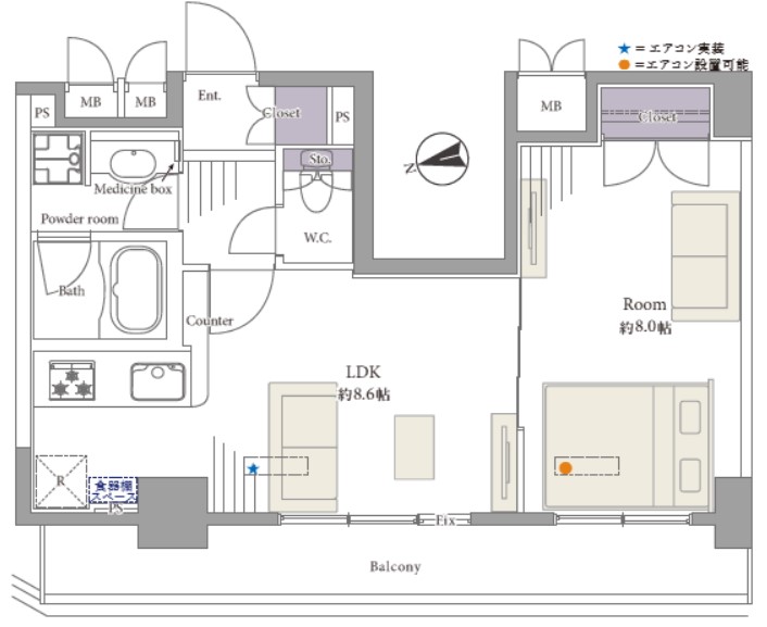
1LDK+2Closet 専有面積(壁芯)/40.65㎡ バルコニー満席/9.3㎡
つくばEX 浅草駅 徒歩5分
東京メトロ銀座線 田原町 徒歩9分
JR線 上野駅 徒歩14分
住居表示 東京都台東区松が谷2-25-5
構造 鉄骨鉄筋コンクリート造
土地権利 所有権
築年月日 平成20年3月
管理費 月額7,700円
修繕積立金 月額10,800円
管理形態 全部委託(巡回)/株式会社レーベンコミュニティー
駅徒歩5分圏内 複数路線利用可 長期修繕計画有 浴室換気乾燥暖房機 宅配BOX
ペット飼育可 外壁タイル貼 平成20年築 アフターサービス保証付(最大10年保証)




























